Derivação em T, altura do ducto 120 mm, FS

Ref. 7218082 | EAN 4012197365264

7218082 / PLM TB 1220 FS
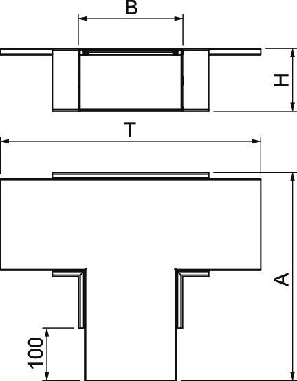
200 mm
120 mm
zinco
Descrição do produto
Descrição do produto
Derivação em T com tecido intumescente de proteção contra incêndio para ducto de instalação PYROLINE® Rapid PLM. Adequado para a montagem direta na parede e no teto, montagem abaixo de sistemas de chão e em sistemas de suporte. Montagem de juntas, sem ferramentas, com união PLM SI. A tampa é encaixada, sem ferramentas, e permite uma rápida revisão e uso posterior. A projeção da tampa permite a instalação desfasada da tampa para a ligação equipotencial contínua de toda a secção do ducto.

Sem manutenção elétrica de funções, conforme a DIN 4102, parte 12!


  • VDE (Associação de Eletrotécnia, Eletrónica e Tecnologias da Informação), Alemanha
  • Communautés Européennes, Declaração de Conformidade CE conforme as directivas CE
  • Pegada de CO₂ (PCF)
Dados técnicos

Dados técnicos

Classificação EI - Calha de instalação 90
Com perfuração sim
Cor zinco
Dimensão 600x400x120
Material Aço
Medida A 400 mm
Medida B 200 mm
Medida H 120 mm
Medida T 600 mm
Número de lados inflamáveis 4
Pegada de CO2 (GWP) do berço ao portão 12,986 kg CO2e / 1 Peça
Possível separadores sim
Revestimento Aço
Secção transversal útil 18500 mm²
Superfície galvanizado pelo método Sendzimir
Todos os tipos

Todos os tipos

Tipo Medida B Medida H Cor Ref. Quantidade Qte. minima fornec.
PLM TB 1220 FS 200 mm 120 mm zinco 7218082
1 Unidade
Downloads

Download

Declaração de conformidade UE PLM TB 1220 FS / 7218082 , 0.20MB , pdf
Download
REACH Declaração de conformidade PLM TB 1220 FS / 7218082 , 0.13MB , pdf

Não estão disponíveis quaisquer memórias descritivas para este produto