- Descrição do produto
-
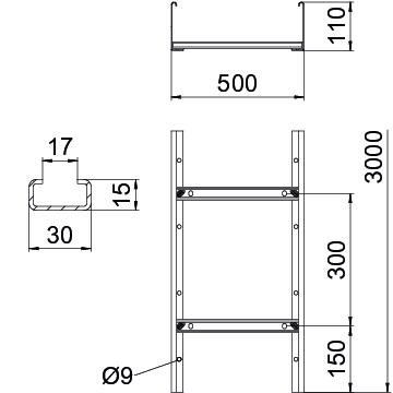
Descrição do produtoCaminho de cabos tipo escada com altura lateral de 110 mm com perfil separador C30 soldado e rebitado para cima. Travessa lateral revirada para reforço e como proteção de arestas. A fixação na consola é efetuada com peças de aperto do tipo LKS 40. A dimensão da ranhura do degrau é de 16,5 mm e a abraçadeira BBS adequada é a do tipo 2056.
Atenuação da blindagem magnética sem tampa 10 dB, com tampa 15 dB.
-
- Dados técnicos
-
Dados técnicos
Aço inoxidável, decapado não Altura 110 mm Comprimento 3000 mm Cor zinco Dimensão 110x500x3000 Dimensão de ranhura degrau 17,00 Distância de apoio de 2,0m 4 kN/m Distância de apoio de 2,5m 3 kN/m Distância de apoio de 3,0m 2,3 kN/m Distância de apoio de 3,5m 1,6 kN/m Distância de apoio de 4,0m 1 kN/m Distância de apoio de 4,5m 0,83 kN/m Distância de apoio de 5,0m 0,7 kN/m Distância de apoio de 6,0m 0,25 kN/m Distância entre as travessas 300 mm Espessura da travessa 2 mm Fixação do degrau soldado Funktionsgaranti não Largura 500 mm Material Aço Medida B 500 mm Pegada de CO2 (GWP) do berço ao portão 13,5051 kg CO2e / 1 Metro Perfuração lateral sim Secção transversal útil 450 cm² Secção transversal útil 45000 mm² Superfície galvanizado a quente após maquinação 85µm Versão do perfil lateral perfil plano Versão dos degraus Perfil não perfurado Versão para grandes cargas não Dados técnicos
Diagrama de cargas do caminho de cabos tipo escada SLCS 110
-
Carga dos caminhos de cabos em chapa e das escadas para cabos em kN/m sem carga suportada pelo utilizador
-
Distância entre apoios em m
-
Deflexão da travessa em mm com a kN/m permitida
-
Esquema de carga no procedimento do teste
-
Curva de carga com largura do caminho de cabos em mm
-
Curva de deflexão da travessa conforme distância entre apoios
-
- Todos os tipos
-
Todos os tipos
- Downloads
-
Ficha técnica SLCS 1150 3 FTSO / 7186406 , 0.26MB , pdfNotas explicativas KTS cable tray systems , 1.61MB , pdfDeclaração de conformidade UE SLCS 1150 3 FTSO / 7186406 , 0.13MB , pdfDeclaração de Conformidade do Reino Unido SLCS 1150 3 FTSO / 7186406 , 0.09MB , pdfDeclaração Ambiental de Produto (DAP) SLCS 1150 3 FTSO / 7186406 , 1.48MB , pdfInstruções de montagem Instruções de montagem, sistemas de caminhos de cabos tipo escada , 6.45MB , pdfInstruções de montagem General information on the mounting , 2.65MB , pdf
Portugal - Português
Tampa com ferrolho FT SOMY